Appartement T3 neuf
- 1,150€/mois
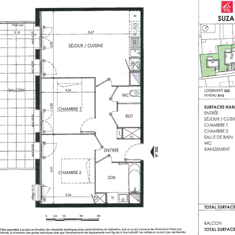
Référence 302
Description
Soyez le premier locataire de cet appartement T3 non meublé et neuf situé route de Revel au 3ème et dernier étage d’un immeuble calme et sécurisé.
L’appartement est composé d’une entrée avec placard, d’un séjour avec accès à une terrasse de 17.60 m2; d’une cuisine ouverte sur le séjour, d’un couloir desservant deux chambres, un cellier, une salle de bains et un WC séparé.
Deux emplacement de parking en sous sol complètent cette location.
Situé à quelques minutes de l’arret de Bus BAJAC ou PARC ALALOUF ou PARC DE MONTAUDRAN, ligne L9 + L8 + station de metro en construction place de l’ormeau.
Proche parc pour enfant et établissements scolaires.
Chauffage et production d’eau individuel gaz
CONDITIONS DE LOCATION :
Loyer Mensuel : 1150.00 EUR charges comprises dont 70EUR de provisions de charges.
Dépôt de garantie : 1080.00 EUR
Honoraires charge locataire : 780.00 EUR TTC dont 180.00 EUR pour l’état des lieux
Les risques auxquels ce bien est exposé sont disponible sur le site georisques.gouv.
Disponible
Localisation
Voir sur la carte-
Ville: Toulouse
-
Code postal: 31400
-
Département: Haute-Garonne
Détails
Mis à jour le mars 23, 2026 à 7:30 am-
Prix 1,150€/mois
-
Surface 60.75 m²
-
Chambres 2
-
Pièces 3
-
Année de cosntruction 2025
-
Type de bien Appartement
-
Statut Coup de coeur, Location
Détails aditionnels
-
Etage 3
-
Nombre d'étages 3
-
Chauffage Individuel gaz
-
Parking 2
-
Date construction 2025
-
Ascenseur oui
-
Type Loyer cc
-
Provisions sur charges 70€
-
Honoraires de location 780€
-
Dont état des lieux 180€
-
Dépot garantie 1080€
Visite virtuelle
Diagnostic énergétique
Diagnostic de performance énergétique
Calculatrice immobilière
-
Apport
-
Emprunt
-
Mensualité de crédit à payer
Biens similaires
superbe appartement T5 entre les Carmes et Palais de Justice
- 1,950€/mois
Location T2 meublé – 31m2 – Quartier Matabiau
- 720€/mois











